Łazienka Marmurowa w Poznaniu

Klaudia-design.com / Portfolio / Łazienka Marmurowa w Poznaniu

wejdź na mojego bloga

Potrzebujesz pomocy?

Marmurowy Azyl w Poznaniu: Luksusowe SPA na Trzech Metrach

Opis

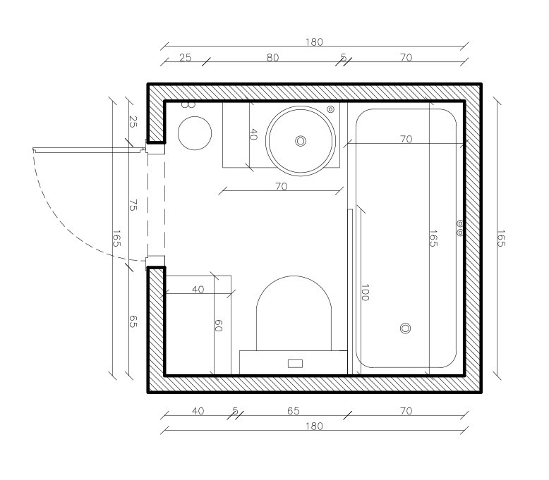
Projekt tej poznańskiej łazienki to dowód na to, że nawet na bardzo ograniczonym metrażu (ok. 3 m²) można stworzyć przestrzeń, która emanuje spokojem, elegancją i standardem high-end. Moim celem było stworzenie prywatnego azylu, w którym każdy detal techniczny wspiera estetykę domowego SPA.

1. Inteligentne Planowanie: Wykorzystanie każdego centymetra  Pracę nad łazienką rozpoczęłam od sporządzenia bardzo precyzyjnego rzutu technicznego. Dzięki dokładnym pomiarom i analizie instalacji udało mi się zmieścić pełnowymiarową wannę (165 cm) oraz funkcjonalną strefę umywalkową na powierzchni 180×165 cm:

  • Ergonomia: Zaplanowałam optymalne odległości między miską ustępową a szafką podumywalkową, zapewniając swobodę ruchów mimo małej powierzchni.

     
  • Ukryta logistyka: W dokumentacji uwzględniłam miejsce na pralkę oraz niezbędną przestrzeń do przechowywania, zachowując wizualną lekkość wnętrza.

2. Estetyka: Ponadczasowa biel i szlachetny marmur  Wizualną bazę projektu stanowi wielkoformatowy gres o rysunku białego marmuru. To rozwiązanie optycznie powiększa przestrzeń i nadaje jej elitarny charakter, spójny z moim doświadczeniem projektowym z USA.

  • Strefa umywalkowa: Zastosowałam nablatową umywalkę o obłym kształcie, która kontrastuje z prostymi liniami płytek. Dopełnieniem są osobiste akcenty: taca z perfumami, świece oraz żywa orchidea, które wprowadzają do łazienki duszę i zapach.

  • Transparentność: Szklany parawan nawannowy pozwala na korzystanie z funkcji prysznica bez optycznego zamykania przestrzeni, co jest kluczowe w małych łazienkach.

3. Światło, które buduje nastrój  Jako projektantka przykładam ogromną wagę do scenariuszy świetlnych. W tej realizacji, obok głównego oświetlenia sufitowego, zaprojektowałam liniowe oświetlenie LED pod wanną.

  • Efekt “Lekkości”: Podświetlenie dolnej części zabudowy sprawia, że bryła wanny wydaje się unosić nad podłogą, co dodaje wnętrzu nowoczesnego sznytu i buduje relaksującą atmosferę podczas wieczornych kąpieli.

     

www.klaudia-design.com

Twoja wizja, moje wykonanie - zacznijmy